Selecciona un idioma

Oficina en venta en Oviedo de 299 m2 REF:18208

  • 198,000€

Oficina en venta en Oviedo de 299 m2 REF:18208

  • 198,000€

Resumen

Identificación de la propiedad: 18208
  • Oficina
  • Tipo de propiedad
  • 5
  • Dormitorios
  • 3
  • Baños
  • 299
  • m2

Descripción

Oficina en venta en zona Masip, Oviedo (Asturias, España).

Precio: 198.000 €.
Superficie construida: 299 m².
Entreplanta exterior.

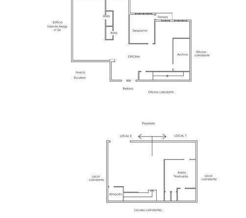
Venta de inmueble compuesto de una oficina y dos locales, situado en la zona media de Valentín Masip, en Oviedo. Se encuentra en un edificio construido en 1974, sin barreras arquitectónicas, con ascensor, portero físico y servicios centrales.
Superficies:
Oficina: Archivo, zona de trabajo, terraza, despacho, dos aseos y escalera – 183 m².
Local 7: Local, vestuarios y aseos – 55 m².
Local 8: Local, escalera y almacén – 61 m².
Dispone de calefacción y agua centrales, ventanas de madera, suelos de gres y vinílico en la oficina y de gres y solera de hormigón en los locales, etc.

Sellmi | Inmobiliaria | Real Estate.
Encuentra más en http://www.sellmi.es

Detalles

Actualizado en diciembre 4, 2025 a 1:39 pm
  • Precio: 198,000€
  • Tamaño de la propiedad: 299 m2
  • Dormitorios: 5
  • Baños: 3
  • Tipo de propiedad: Oficina
  • Estado de la propiedad: Venta

Certificado energético

  • Clase energética: X
  • Índice de Rendimiento Energético Global:
  • A+
  • A
  • B
  • C
  • D
  • E
  • F
  • G
  • H

Información de contacto

carlosHerrera
  • carlosHerrera

Pregunte por esta propiedad

Añadidos

  • Ciudad Oviedo
  • Estado, Provincia Asturias

Listados similares

Comparar listados

Comparar
carlosHerrera
  • carlosHerrera